Maison neuve clé sur porte – Lot 1 – Projet Baijot

Description du bien

Située dans le charmant village d'Ormeignies, cette maison neuve 4 façades bénéficie d’un cadre de vie calme, tout en restant à seulement 10 minutes en voiture de la ville d’Ath et de l’ensemble de ses commodités (commerces, écoles, transports, services).
Elle sera livrée clé sur porte et est actuellement en cours de construction avec des matériaux de qualité, pensée pour offrir un confort optimal et une excellente performance énergétique.

COMPOSITION :



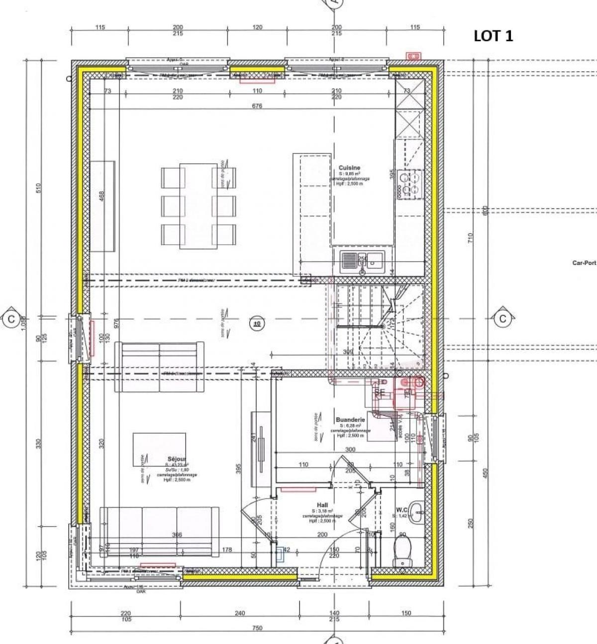
REZ DE CHAUSSEE

Hall d’entrée : ± 3 m²
Spacieux séjour lumineux : ± 43 m²
Cuisine ouverte : ± 10 m²
⚠️ La cuisine n’est pas installée mais un bon à valoir de 10.000 € TTC est prévu chez le partenaire Ideo Cuisine. Les plans techniques devront impérativement être respectés. Toute adaptation souhaitée sera à charge de l’acquéreur et réalisée après l’acte, par Ideo ou une société tierce. Bon non cessible, non remboursable et non échangeable.
Buanderie : ± 6,5 m²
WC séparé : ± 1,4 m²



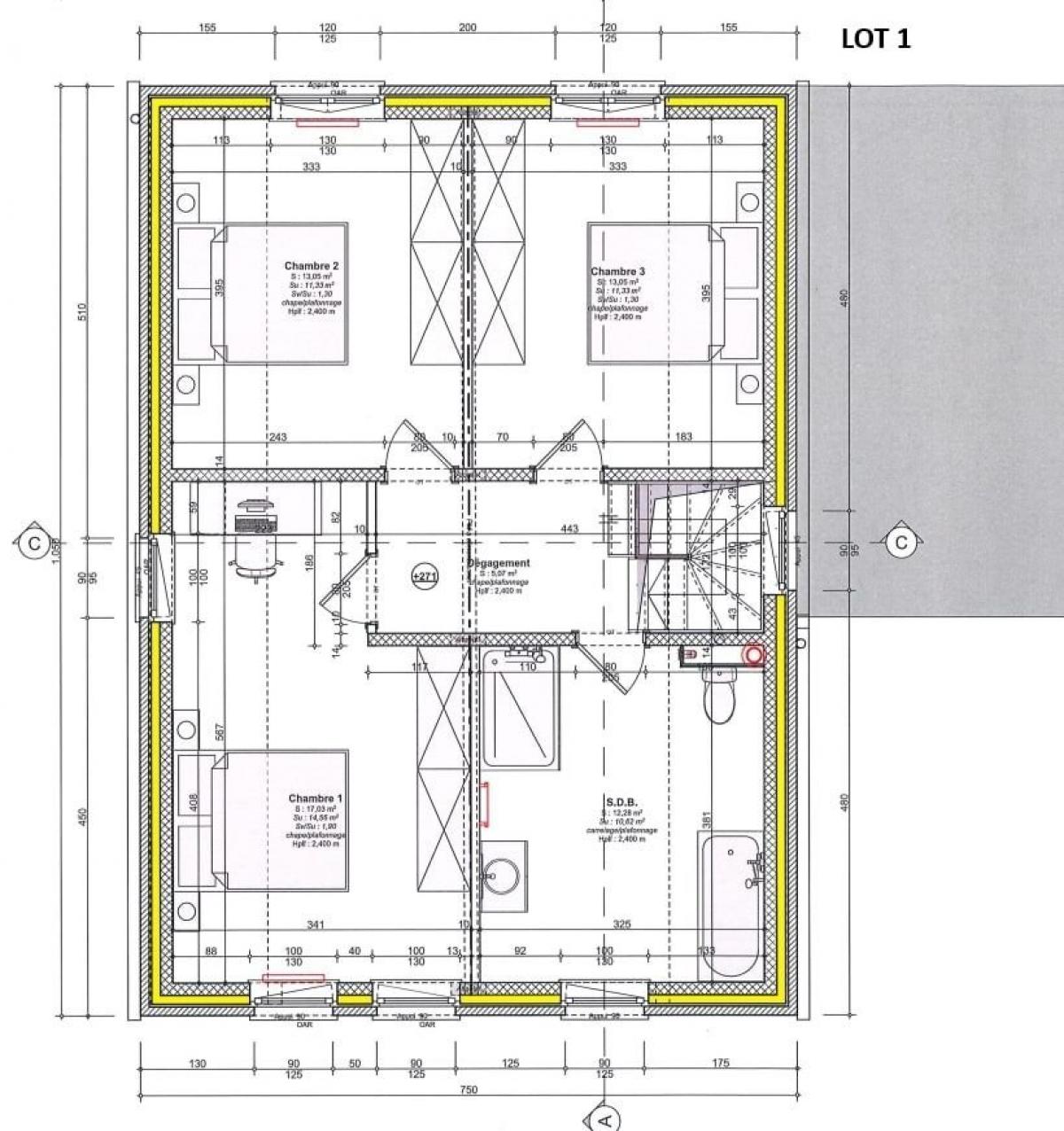
ETAGE

Hall de nuit : ± 5 m²
Chambre 1 : ± 17 m²
Chambre 2 : ± 13 m²
Chambre 3 : ± 13 m²
Salle de bains : ± 12,5 m²



EXTERIEURS

Jardin avec terrasse orientée ouest : ± 14 m²
Carport : ± 15 m²
parking : 2 places



AUTRES INFORMATIONS

Superficie habitable : 158 m²
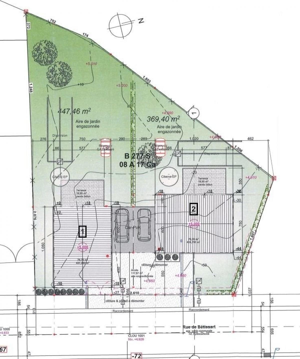
Terrain : 4 ares 48 centiares
Année de construction : 2025
PEB prévu : A
Chauffage central gaz – chaudière à condensation haut rendement
Production d’eau chaude via chaudière
6 panneaux photovoltaïques
Châssis PVC double vitrage super isolant
Isolation murs : 10 cm polyuréthane
Isolation sol : 10 cm polyuréthane
Isolation toiture : laine minérale 22 cm
Électricité conforme (valable 25 ans)
Garantie décennale
Raccordement à l’égout--> frais à charge de l’acquéreur

Aspects urbanistiques : 

Construction sur la parcelle actuellement cadastrée : B277s
Plan de secteur : zone d’habitat à caractère rural
PASH : zone d’assainissement collectif
Hors zone inondable
BDES : rien à signaler
Permis d’urbanisme obtenu



 PRIX : 339.000 € hors frais et hors TVA

📩 Plus d’informations sur demande : plans, cahier des charges, description des travaux, plans techniques cuisine Ideo, etc.
Intéressez par ce bien ? contcatez nous au 068333053 ou par mail à l'adresse info@yelo-immo.be

Informations générales
Type de bienmaison
Localisation7802 Ormeignies
Superficie terrain448 m²
Nb. etages1
R.C.0.00 €
Disponibleà convenir
Année de construction2025
Energie
PEB
N° PEB
PEB / Espec
PEB / Etotale
Chauffage (énergie / type)chauffage central: gaz / radiateurs
Autresdouble vitrage
panneaux solaires
Parking
Intérieur0
Extérieur2
Aménagement intérieur
Nb. chambres3
Salle(s) de bain1
Autresbuanderie
Services
Eau de villeoui
Electricitéoui
Gazoui
Télédistributionoui
Téléphonenon
Prix339000 €
Image Yelo Ath un autre regard sur l'immo
© 2026 Yélo Immo - all rights reserved
Agent immobilier agréé IPI, N° 510.599 octroyé en Belgique - WWW.IPI.BE